Sold

215 - 1330 Marine Drive

Pemberton NV, North Vancouver

$635,000

price

1

bedroom

1

bathroom

655

sqft

About this Condo in Pemberton NV

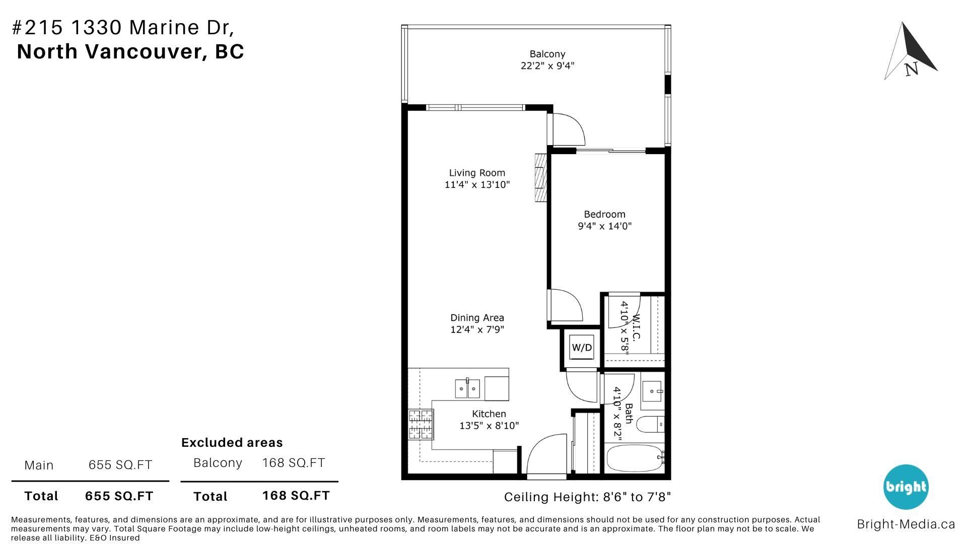
Welcome to The Drive by Onni! This spacious 655 sqft 1-bedroom, 1-bathroom home is located on the quiet, north-facing side of the building with a large private patio, gas bib, and peaceful setting with lush tree views. Enjoy a functional layout with engineered hardwood floors, cozy fireplace, and a modern kitchen with stainless steel appliances, quartz counters, gas stove, and breakfast bar. The bedroom fits a king-sized bed and features a walk-in closet with built-in organizers. Spa-inspired bathroom with deep soaker tub and great storage. Live steps from transit, groceries, cafés, and restaurants in one of North Van’s most walkable communities. The Drive is a well-maintained building with proactive strata, gym, party room, bike storage, & visitor parking. 1 parking & 1 storage included.

215 - 1330 Marine Drive, Pemberton NV, North Vancouver 2
Listing Details
  • MLS®: R3058587
  • Bedrooms: 1
  • Bathrooms: 1
  • Type: Condo
  • Size: 655 sqft
  • Full Baths: 1
  • Half Baths: 0
  • Taxes: $3,464.02
  • Strata: $353.78
  • Parking: Garage Under Building, Lane Access (1)
  • Basement: None
  • Storeys: 4
  • Year Built: 2012

A Closer Look at the Location

Pemberton NV, North Vancouver

Explore the features and amenities of this neighbourhood location.

Address on Google Mapsmap marker icon
Map View
Street View

Similar Listings


Share this property with a friend