Sold

1823 Chesterfield Avenue

Central Lonsdale, North Vancouver

$1,599,900

price

3

bedroom

3

bathroom

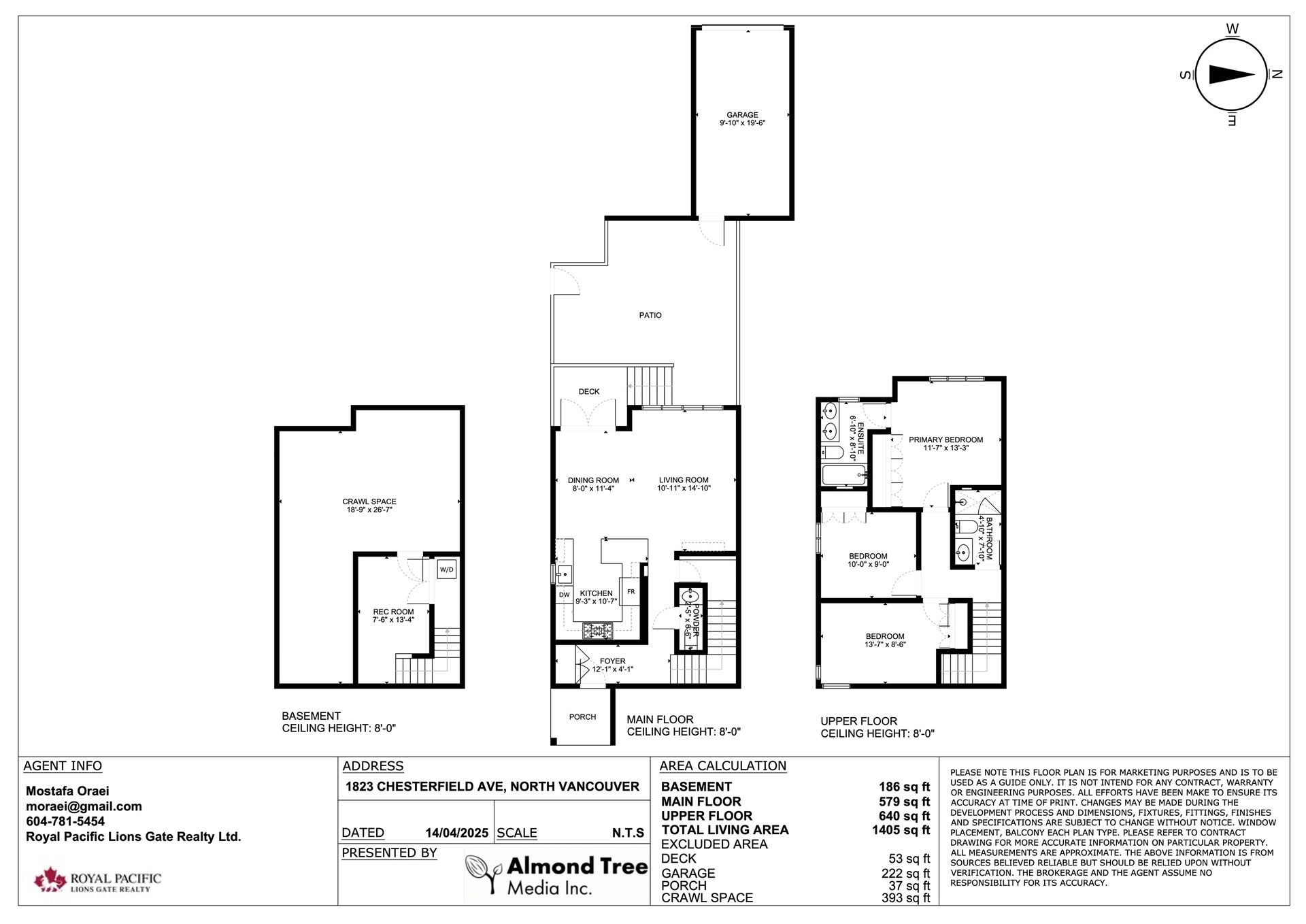
1,405

sqft

About this Duplex in Central Lonsdale

Beautifully renovated 3 bed, 3 bath home offering the perfect blend of luxury, function, and comfort across three thoughtfully designed levels featuring high-end finishes, custom millwork, and a functional floor plan that seamlessly connects indoor and outdoor living. The private yard is ideal for entertaining or quiet retreat, while EV charging provides added modern convenience. Upstairs bedrooms offer space and serenity, and the lower level includes a cozy rec room perfect for family movie nights, playroom, or home office. Located in the heart of Central Lonsdale, just steps from boutique shops, vibrant cafes, top-rated schools, lush parks, and the scenic Green Necklace trail, this home is move-in ready and nestled in one of North Van's most walkable and desirable neighborhoods.

1823 Chesterfield Avenue, Central Lonsdale, North Vancouver 2
Listing Details
  • MLS®: R2990331
  • Bedrooms: 3
  • Bathrooms: 3
  • Type: Duplex
  • Size: 1,405 sqft
  • Lot Size: 5,928 sqft
  • Frontage: 49.40 ft
  • Full Baths: 2
  • Half Baths: 1
  • Taxes: $3,666.60
  • Parking: Rear Access, Garage Door Opener (2)
  • Basement: Full, Finished
  • Storeys: 3
  • Year Built: 1999

Virtual Tour of 1823 Chesterfield Avenue

A Closer Look at the Location

Central Lonsdale, North Vancouver

Explore the features and amenities of this neighbourhood location.

Address on Google Mapsmap marker icon
Map View
Street View

Similar Listings


Share this property with a friend